Pieejams 5+
4 statņu pacēlājs ar labu cenas un kvalitātes attiecību. Pacēlājs ir aprīkots ar pneimatisko (automātisko) bloķēšanas sistēmu. Pacelšanas platformas ar optimālu garumu (5500 mm) ļauj pacelt un regulēt savirzi vieglajām automašīnām un komerctransoprtam.
Celtspēja 6500 kg
Celšanas laiks 71 s
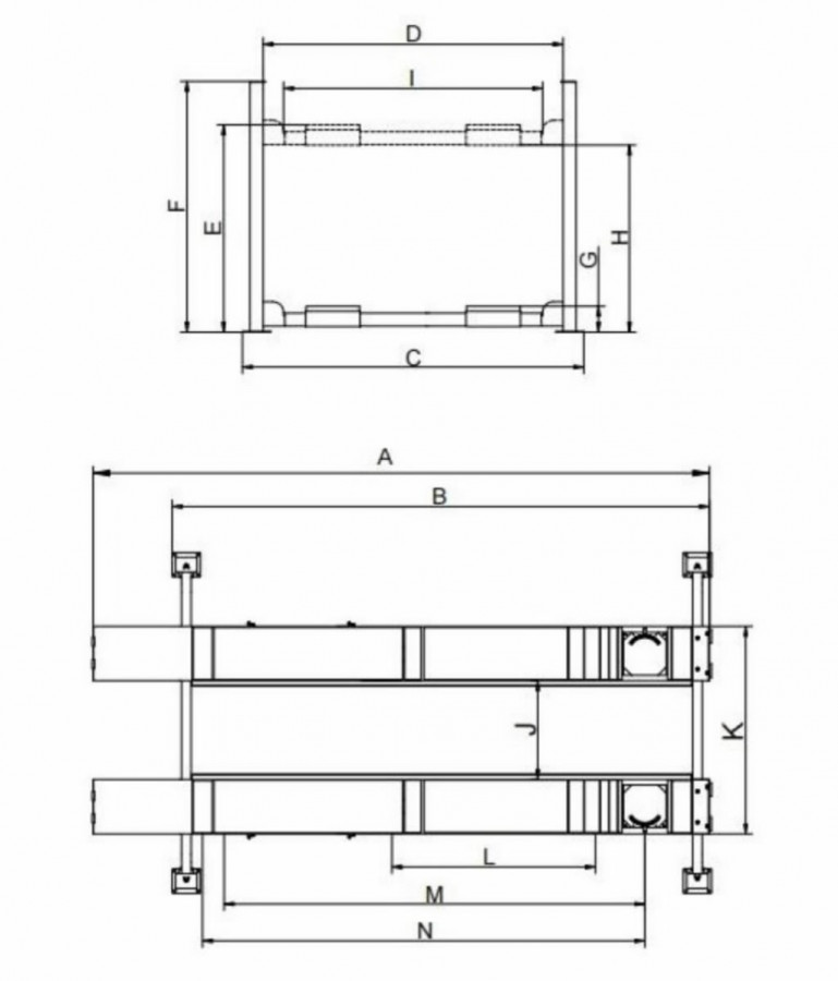
A: Kopējais garums (ieskaitot rampas) 6528 mm
B: Kopējais garums (bez rampām) 5500 mm
C: Kopējais platums 3324 mm
D: Platums starp kolonnām 2946 mm
E: Maks. pacelšanas augstums 1972 mm
F: Kopējais augstums 2189 mm
G: Minimālais augstums 232 mm
H: Maks. augstums zem platformas 1752 mm
I: Caurbraukšanas klīrenss 2592 mm
J: Platums starp sliedēm 1194 mm / Maks. 1385 mm
K: Sliedes ārējā mala 2210 mm / Maks. 2401 mm
L: Minimālais četru riteņu izlīdzinājums 2396 mm
M: Maks. četru riteņu izlīdzinājums 4310 mm
N: Maks. Divu riteņu savirze 4472 mm
Pilna masa 1544 kg
Dzinējs 3,0 HP
Standarta aprīkojumā:
Aizmugurējās slīd plāksnes,
Papildus:
J6A&PL Ass pacēlājs
40101&PL Priekšējās pagrieziena plāksnes.
Celtspēja 6500 kg
Celšanas laiks 71 s
A: Kopējais garums (ieskaitot rampas) 6528 mm
B: Kopējais garums (bez rampām) 5500 mm
C: Kopējais platums 3324 mm
D: Platums starp kolonnām 2946 mm
E: Maks. pacelšanas augstums 1972 mm
F: Kopējais augstums 2189 mm
G: Minimālais augstums 232 mm
H: Maks. augstums zem platformas 1752 mm
I: Caurbraukšanas klīrenss 2592 mm
J: Platums starp sliedēm 1194 mm / Maks. 1385 mm
K: Sliedes ārējā mala 2210 mm / Maks. 2401 mm
L: Minimālais četru riteņu izlīdzinājums 2396 mm
M: Maks. četru riteņu izlīdzinājums 4310 mm
N: Maks. Divu riteņu savirze 4472 mm
Pilna masa 1544 kg
Dzinējs 3,0 HP
Standarta aprīkojumā:
Aizmugurējās slīd plāksnes,
Papildus:
J6A&PL Ass pacēlājs
40101&PL Priekšējās pagrieziena plāksnes.


